Rénovation d'un dupleix parisien de 160 m2
Pensé comme un cocon lumineux, ce projet conjugue modernité et charme de l’ancien. Les poutres apparentes et le parquet en point de Hongrie dialoguent avec des lignes contemporaines, créant un intérieur graphique et doux.
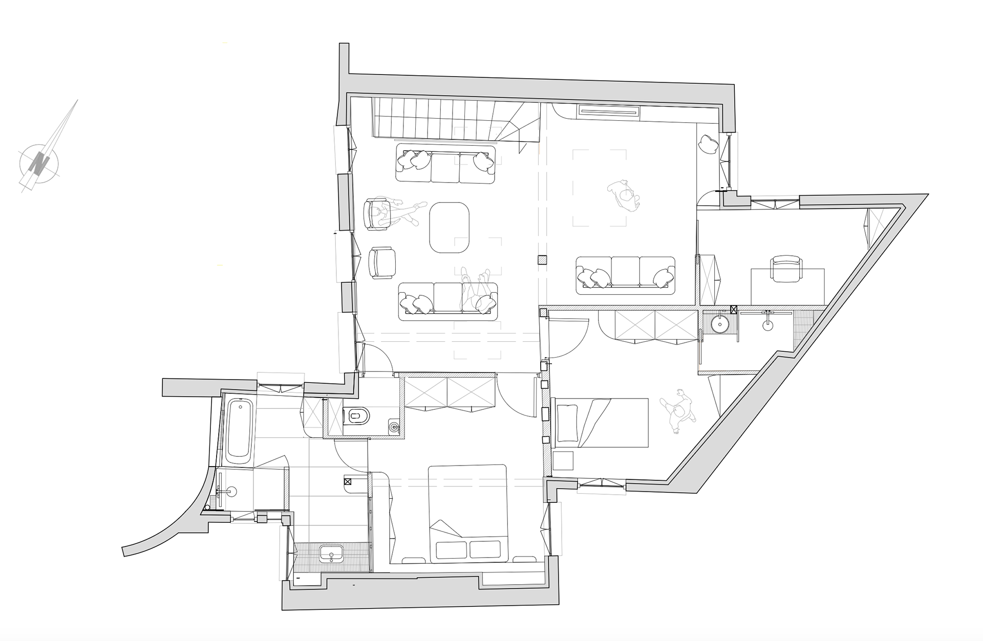
Grâce à sa quadruple orientation, l’appartement vit au rythme de la lumière. Dans la chambre parentale, une verrière intérieure ouvre la perspective entre chambre et salle de bain attenante, offrant une double exposition. Le séjour, quant à lui, s’ouvre vers le ciel avec quatre verrières de toit : dès la montée de l’escalier, la lumière enveloppe les volumes et magnifie l’espace.
Le mobilier sur mesure, dessiné tout en courbes fluides, apporte douceur et mouvement, et dialogue avec des formes plus graphiques et symétriques comme celles de l’escalier ou des salles de bain. Les dressings toute hauteur, optimisés, prolongent cette recherche d’équilibre en renforçant la verticalité et en accentuant la générosité sous plafond.
La palette chromatique associe couleurs puissantes et teintes douces : chaque pièce raconte son histoire et dégage une atmosphère singulière. Dans la chambre d’enfant, le thème du ciel et des toits parisiens se déploie à travers un panorama poétique signé Isidore Leroy, au dessus duquel le ballon dirigeable suspendu survole la chambre pour l'éclairer. Le bureau, quant à lui, ouvre une fenêtre sur un panorama végétal et aquatique, également signé Isidore Leroy.




Avant Travaux
Projet en collaboration avec l'agence GO architecture